Разнообразие доступных на рынке батарей и технологий для резервного питания позволяет телекоммуникационным компаниям выбирать оптимальные решения в зависимости от их индивидуальных потребностей и требований к надежности и эффективности систем связи. Холдинг 1AK-GROUP предлагает как типовые, так и разработку индивидуальных решений по хранению энергии для телекоммуникационного сектора. Рассказываем об индивидуальном подходе по замене аккумуляторов для телекоммуникационного оборудования.
Резервное питание играет ключевую роль в обеспечении бесперебойной работы телекоммуникационных сетей, особенно в условиях перебоев в подаче электроэнергии.
Свинцово-кислотные батареи, хотя и имеют некоторые ограничения по сравнению с литий-ионными, всё ещё широко используются в телекоммуникационном секторе из-за своей надежности и низких эксплуатационных расходов. Однако, литий-ионные аккумуляторы предлагают более высокую плотность энергии, длительный срок службы и меньший вес, что делает их привлекательным выбором для некоторых систем.
Важно правильно подобрать аккумуляторы, учитывая такие факторы, как габариты, рабочие температуры, надежность и безопасность. Такие критерии как совместимость с телекоммуникационной инфраструктурой и устойчивость к условиям эксплуатации, играют решающую роль в обеспечении эффективного резервного питания.
Лидер телекоммуникационного сектора Республики Беларусь поставил задачу по замене свинцово-кислотных АКБ на LI-Ion в своей телекоммуникационной аппаратуре. Необходимость такой замены обусловлена потребностью в увеличении ресурса и снижению массогабаритных показателей АКБ. В техническом задании были предъявлены требования:
- к габаритам корпуса;
- напряжению;
- емкости аккумуляторов;
- сроку службы;
- наличию дополнительных опций для мониторинга состояния АКБ.
При этом новые LI-ION АКБ должны устанавливаться на штатное место, без дополнительных доработок существующей системы.
После анализа технического задания, R&D центр 1AK-GROUP предложил для решения поставленных задач АКБ ZUBR LFR 48В 100Ач (15S1P), имеющий химическую формулу LiFePO4.
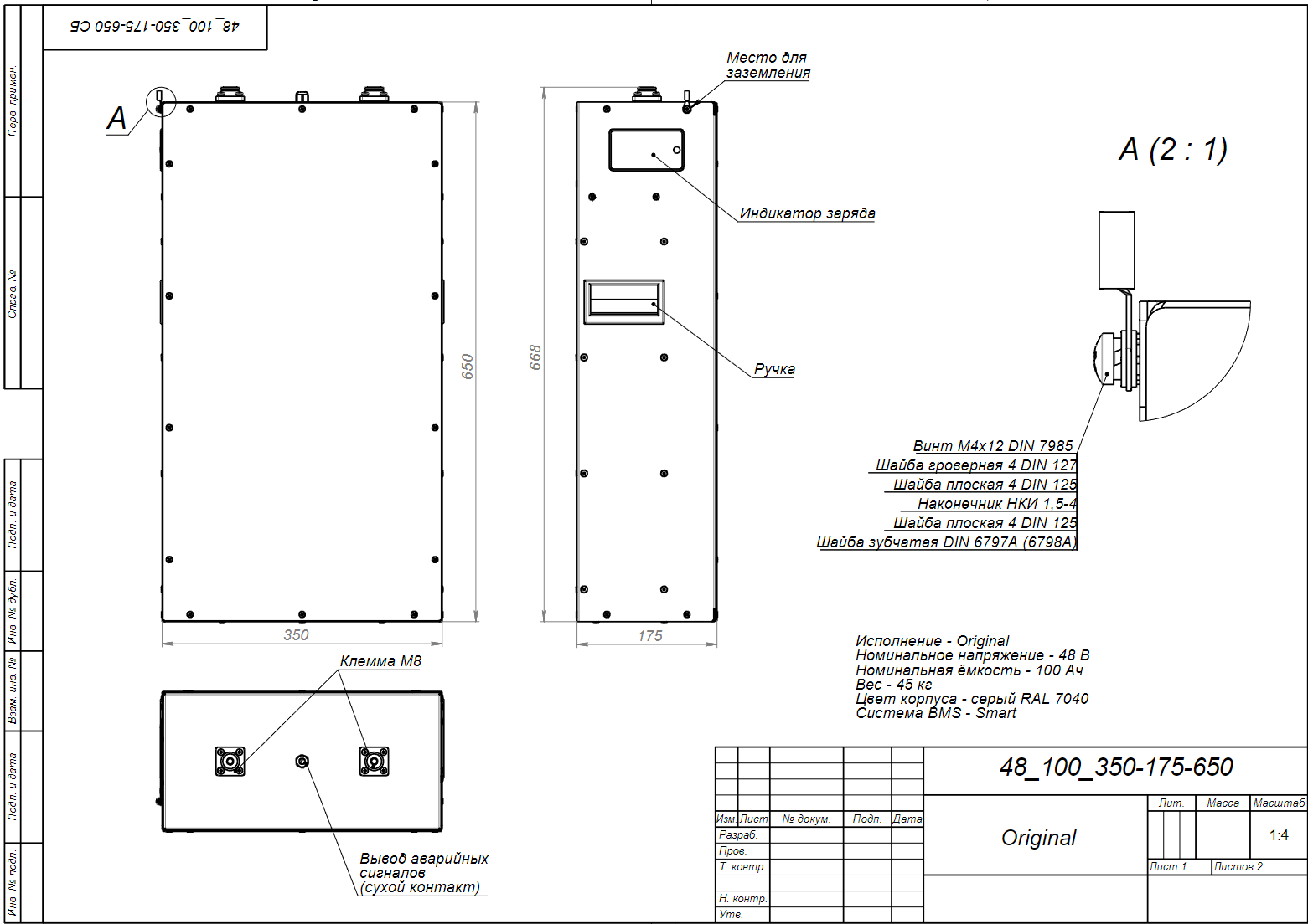
Рисунок — Эскиз АКБ, разработанный по техническому заданию заказчика
Инженеры производства Li-Ion направления 1AK-GROUP разработали конструктив АКБ по техническому заданию заказчика, дополнительно высота корпуса была уменьшена еще на 35%.
R&D центром были разработаны 3D модель аккумулятора, чертежи, схемы сборки и протоколы тестирования. Сборка аккумуляторов осуществлялась также на производственных мощностях 1AK-GROUP.

Рисунок — 3D модель АКБ ZUBR LFR48V100Ah
Технические характеристики батареи ZUBR LFR представлены в Таблице.
Таблица — Технические характеристики ZUBR LFR

Дополнительно батареи были оборудованы:
- системой подключения по Bluetooth для выгрузки логов работы и контроля состояния АКБ со смартфона;
- системой активной балансировки для увеличения срока службы и снижения разброса параметров по ячейкам;
- сухим контактом для удаленного мониторинга состояния батареи системами заказчика.
Расчетный срок службы такой АКБ в буферном режиме составляет 15 лет или не менее 3 500 циклов заряда-разряда. Гарантийный срок — 36 месяцев.
При выходе АКБ из строя в течении гарантийного срока предусмотрена дополнительная резервная батарея для замены на время ремонта в качестве ЗИП. АКБ ZUBR LFR практически не требует обслуживания в процессе эксплуатации.
На сегодняшний день 25 АКБ произведены и в полном объеме поставлены заказчику для установки на оборудование.
Холдинг 1AK-GROUP белорусский производитель аккумуляторов, с 2022 года развивает li-ion направление, осуществляет сборку промышленных li-ion аккумуляторов. В холдинге создан центр научно-технической экспертизы, что позволяет разрабатывать индивидуальные решения в области хранения энергии. Специалисты компании обладают соответствующей квалификацией по обслуживанию поставляемого оборудования согласно Межотраслевых правил по охране труда при работе в электроустановках и ТКП 181-2009(02230), Правил технической эксплуатации электроустановок потребителей. 1AK-GROUP уполномочен производить техническое и сервисное обслуживание АКБ, что обеспечивает быстроту и качество обслуживания.

Рисунок — Готовая АКБ ZUBR LFP48V100Ah

Рисунок — АКБ на участке тестирования перед упаковкой
Для консультации по разработке или поставки аккумуляторов обращайтесь info@1ak-group. com